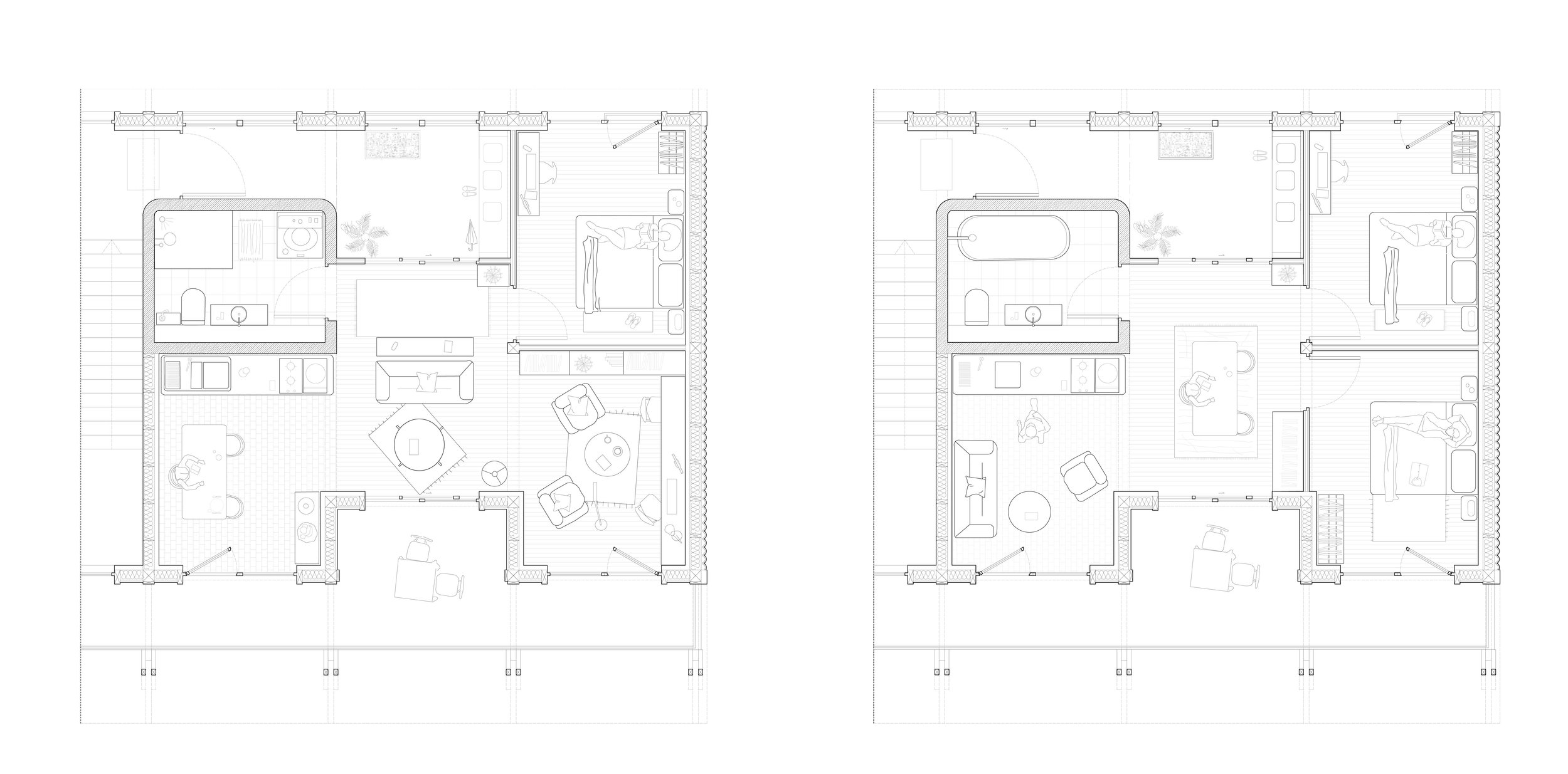
Le centre-bourg de Pontcharra
Projet de Fin d’Études, ENSA Grenoble // Pontcharra, Vallée du Grésivaudan, France // Avec Maya Mazoz // 2025
Le centre-bourg de Pontcharra
Projet de Fin d’Études, ENSA Grenoble // Pontcharra, Vallée du Grésivaudan, France // Avec Maya Mazoz // 2025