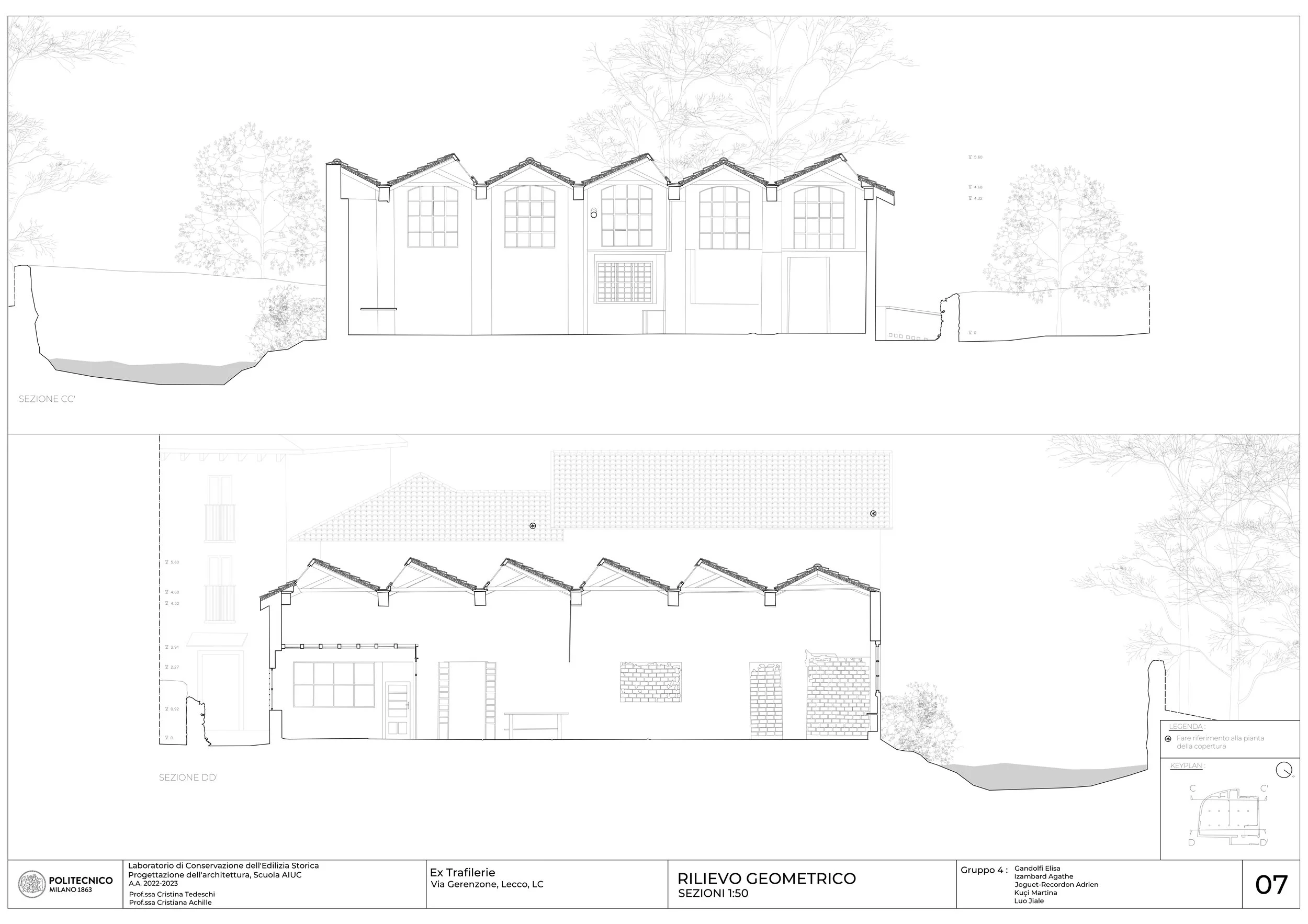
L’ex-trafilerie Cesare Sperafico
Projet relevé et conservation du patrimoine, Politecnico di Milano // Lecco, Italia // Avec Jiale Luo, Elisa Gandolfi, Martina Kuçi et Agathe Izambard // 2022
L’ex-trafilerie Cesare Sperafico
Projet relevé et conservation du patrimoine, Politecnico di Milano // Lecco, Italia // Avec Jiale Luo, Elisa Gandolfi, Martina Kuçi et Agathe Izambard // 2022